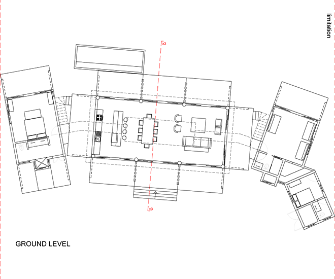
Craig Maldonado

CASA OOX KAAN, TULUM, MEXICO


This project is currently in the design and planning stage- a completely off the grid house located in the Sian Kaan Biosphere, south of the Tulum Beach Hotel area. The design carefully negotiates the very restrictive environmental guidelines of the nature preserve, while presenting equally sensitive design ideas to the surrounding landscape.